The Evergreen cabin model by Southland Log Homes embraces the spirit of simple and genuine living through its well designed Amish inspired floor plan. This park model cabin comprises 507 square feet of thoroughly considered space that combines traditional craftsmanship with practical features which allow the cabin to be used throughout the year. With the Evergreen cabin model, you get a lovely refuge that exudes a warm yet elegant aura and is just what anyone who wants a very compact but highly functional living space would need.

The facade of the Evergreen cabin model is a picture of sturdy yet beautiful farm style construction. The cabin, which is built on a heavy duty steel chassis with four axles and a detachable hitch, is both mobile and stable. The Eastern White Pine logs used for the structure are dovetailed which makes them very strong and stained to bring out their natural beauty. They are also protected by a longlasting metal roof. Apart from this, the cabin is well insulated both in the roof and the floor, making it comfortable even in changing weather conditions. The big windows and an insulated front door together with these features create an energy efficient and bright space that is a joy to live in.
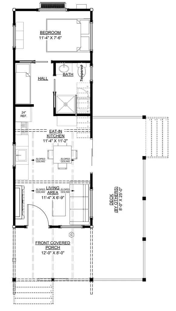
The space of the Evergreen cabin model has been utilized to its maximum through intelligent planning. The ground floor comprises a large open living area which leads to the kitchen naturally and directly. Here, the ceiling height has been extended up to the roof point by vaulting and exposed beams giving the whole place a fresher, more spacious feel while imparting character. An expansive loft gives scope for an extra sleeping accommodation or storage and it can be reached by a solid staircase whose windows help to illuminate the upper floor. Due to its limited footprint 12 ft. wide by 41 ft. deep the cabin can be sited in many different locations, and yet one does not feel the restrictedness of such a space because of excellent architectural planning.

In the interior of the Evergreen cabin model, a mixture of rustic elements and highly practical features can be observed. Exposed wooden beams, which still show the knots in the wood, have been used not only on the walls but also on the ceilings to give the whole room a warm natural look. Apart from that, the living room area is extensively covered in coir furnishing and hardwood flooring from top to bottom, thus giving it the desired robustness and resistance to everyday wear and tear while at the same time making cleaning a breeze. This small area, with its abundance of natural light and room for comfortable seating furniture, is perfect for relaxing while enjoying the ambiance provided by a fireplace that comes as an option. With the help of ductless mini split systems, heating and cooling in the cabin have been made so efficient that one can stay comfortably during any time of the year whatever their climate is.
The kitchen has been conceptualized with the day to day requirements of practical users in mind. A number of wood cabinets have been provided for storing with the lower ones being painted to match the room whilst the solid surface countertops give you a friendly, long lasting working area both at a glance and to your touch. Besides these, the kitchen is also equipped with essential devices such as a refrigerator, electric stove, microwave, and a tankless water heater, all of which make cooking a fun and stress free activity. In addition, the cabin is feature of an exquisitely designed plumbing system that copes well with harsh climatological conditions given that water lines are protected from freezing prone areas, and therefore seems to be prepared for the whole year settings.

The complete bathroom is where we can witness the union of basic needs and clean lines topped by a large shower and up to date elements. Throughout the cabin, efficient use of space has been paramount; a homey atmosphere has been achieved de emphasizing the fact that it is a temporary shelter and not really a home. Another advantage of the cabin’s cool appearance is that it seamlessly blends in with its rustic surroundings and still offers modern comforts such as Ethernet connectivity, USB outlets, and ceiling fans.
One of the perks of the Evergreen cabin model is its covered porch. Durable composite decking and decorative railings create an elegant frame for the porch which extends the cabin’s living area to the outdoors, thus being a great setting for taking a cup of coffee in the morning or simply stretching out of an evening. Courtesy of elements like a ceiling fan and recessed lighting, the porch can be enjoyed both during the day and at night in fact transforming it into a central point of activity for soaking in the environment and chatting with friends.

One of the major advantages of the Evergreen cabin model is its flexibility. The house is strong and insulated well enough to withstand any weather from the snowy winters of the north to the mild summers of the south. Also, you can easily transport your park model and find the perfect spot in a variety of landscapes: wooded slopes, …
The Evergreen cabin model letters to its target audience in many ways. Children love the extra sleeping space in the loft while adults find the cozy downstairs, intimate, and porch a nice touch for a romantic evening. Investors realize the strength in this trending compact, high quality cabin requirement that the sales history will confirm. Here you get your money’s worth since cabins give you premiums like building materials, modern installation systems, four seasons usage features suitably patched up in an accessible yet generational durable product.
Should you want more information, precise details, the latest price or even explore different customizations of the Evergreen cabin model, drop a line to Southland Log Homes website at: Southland Log Homes – Evergreen Cabin Model
| Feature | Detail |
|---|---|
| Size | 507 sq ft (396 main + 111 loft) |
| Bedrooms | 1 + loft |
| Bathrooms | 1 |
| Dimensions | 12′ x 41′ |
| Roof | 40-year metal |
| Insulation | Closed-cell spray foam |
Source: Southland Log Homes – Evergreen Cabin Model