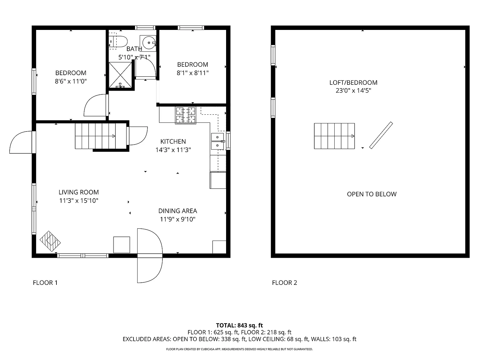
The cabin at 132 Brook Rd in Chelsea, Vermont, is a stunning and very New England northern-style quite anadoernant.logging 852 square feet a retreat built on 6.5 acres of calm woods with 2 bedrooms, 1 bathroom, and an open loft that makes a small area a welcoming place for a family and friends.
This adorable cabin in the woods, with its pine interior and charmingly rugged style, is really a mountain getaway, the way the sun hitting the hand-hewn logs, the cathedral ceilings that make the space feel like it is one with the woods, and the exposed beams that bring to mind the left-over from the old timeg crafts of the yore.

The cabin is the unpretentious authenticity of a fresh morning coming through the pine trees to play on the slate terrace, a loft for reading with a view of the pond, and every detail from the warmth of the wood stove to the whisper of the rain gutters is in perfect harmony with nature. It’s not simply a dwelling; it’s a wonderful offer to live slowly, let the seasons’ rhythm set your pace, and find happiness in the mere fact of being surrounded by nature’s silence.
The cabin’s exterior is a visual symphony of wood and wilderness, and it’s solid foundation coming up from the ground as if it were made for that place, the logs piled up like a master builder has done it with the precision of his work, their bright shades catching the sunlight as if the forest were a source of the light. A dark and strong steel roof slopes down to remove the heavy snow of Vermont, while the slate patio at front is a good ground for outdoor seating—coffee moments when the mist disappears from the spring-fed pond, or fire times for the stars’ reflection on the water.

The 6.5-acre land is a private haven with the pond’s calm waves being the day’s music and the trees surrounding the place offering the walking path or a glimpse of deer at dawn time. With its large windows and sheltered entry, the cabin is designed in such a way that one is never far from the outdoors, and the cabin’s attractiveness is intensified by the beauty of the lot, creating not only a space that is secluded but also connected to the vast Vermont countryside.
Within the cabin, its 852-square-foot plan is a beautiful transition of light and warmth, the cathedral ceilings extend far overhead, the exposed beams bring a bit of rustic style to the room while the hardwood floors balance the room with their deep, natural shades. The living room is the core of the home—a roomy gathering spot for family movie nights, holiday celebrations, or quiet evenings with a book by the wood stove, the flames giving off a warm light to the log walls and drawing you to the comfortable seating.

The open plan of the cabin moves into a bright kitchen with plenty of counters, a pantry for your stuff, and ceiling fans to keep the air fresh on hot days, the room made for the pleasure of preparing food—be it a fast meal or a grand dinner for friends, the cook is kept in the company as per the layout.
Close by and open, the dining space has enough seats for four and is the place where the table becomes the laughing and story-sharing location, the big windows letting the light and views that make every meal special.

Both bedrooms are made to provide rest and revival, and silence each one a separate wing of the cabin’s warm fold. The primary bedroom, on the ground floor, is a calm refuge with a queen bed placed against log walls, plenty of closet space for linens and clothes, and easy access to the full bathroom with modern fixtures and floor tiles.
The second bedroom, in the open loft, stairs offers twin beds or a full setup with room for a dresser, the hooded ceiling being a snug, treehouse-like smallness which is great for guests or kids who like the charms of a little hideaway.

There is only one full bathroom that is located centrally and has a tub/shower combo, vanity, and new fixtures to serve both the bedrooms and ensure morning routines are stress-free and smooth. Some of the most intelligent features in the cabin like the central heating and air for year-round comfort, the wood stove’s gentle warmth on cool nights, and ceiling fans for summer breezes make the place look warm and cozy but very effortless at the same time, where the beauty lies in the perfect combination of the rustic soul and the modern lifestyle.
The attractiveness of the cabin is enhanced by its association with the earth, the slate patio being the medium to come outside, the place where the deck’s fire pit crackles under the stars and the lighted carport makes sure that you can come after dark safely. The 6.5-acre land allows privacy as well as space for gardening or a small playing area, and the woods bordering the property provide trails for early morning walks or evening strolls. The cabin is situated in Chelsea, Vermont, close to the White River and the Appalachian Trail, thus the area’s fishing spots and hiking trails are only a short drive away and the cabin can be a beautiful base both for the vacation and the rest.

This is a cabin where the interior’s rustic luxury—log walls, wood stove, warm lighting—meets the exterior’s natural embrace, a place that is as lovely for its isolation as it is for the shared happiness, where the pond views through the windows remind you that you are not only living in the cabin—you’re living with the earth.
This attractive cabin on 132 Brook Rd is available on Zillow for $249,000. To get more details, see photos, and make an appointment for the viewing, go to the Zillow listing.
| Feature | Detail |
|---|---|
| Size | 852 sq ft |
| Bedrooms | 2 |
| Bathrooms | 1 |
| Lot | 6.5 acres |
| Year Built | 2004 |
| Interior | Open loft, knotty pine |
| Exterior | Tranquil woods, natural beauty |
| Location | 132 Brook Rd, Chelsea, VT 05038 |
Source: Zillow – 132 Brook Rd, Chelsea, VT