The Gingrich Log Homes-built White Oak log home is a stunning example of the combination of classic rustic elements with the elegance of a pine log and the appeal of a contemporary retreat. With a total area of ​​1800 sq. ft., the cabin has 3 bedrooms and 2 bathrooms and gives the impression of a romanticized rural Pennsylvania letter making it suitable for the forested hills or grassy fields without causing any contrast. There is a master bedroom on the ground floor and a large loft on the upper floor in the cabin’s design providing a perfect mix of closeness and spaciousness, thus making it a type of space appropriate for both quiet nights and lively parties.
The White Oak has been made in a very natural style and is a great specimen of nature. Every piece of log and timber is there to tell you a tale of the remarkable skill and love the manufacturer put into it.

First of all, the White Oak log cabin exhibits pretty much everything that is good and lasting about logs construction. The walls are made of 6-inch or 8-inch thick pine or cedar logs which give the house a kind of a shelter but at the same time, it is very natural in appearance. The wood grain has an attractive look under the sun and warm shadows are projected on the covered front porch which is a perfect place to have tea and watch the sunrise or fog lifting from the fields.
Metalized architectural tab span the steep roof which is purposely made that way to allow easy sliding off of snow and rain and the big back porch practically brings the indoors outside by providing sufficient space for a barbecue party or just watching the stars on a clear night. The cabin takes up a fair piece of land with an option to place a garage off the laundry area that is both useful and beautiful and can be the perfect base of any landscape from countryside getaways to semi-rural villas.

As a matter of fact, the heart or the living room of the White Oak is the main attraction of the house where the ceiling is very high, and the room has an airy feeling due to the six large pine beams holding the roof that are left exposed. The ceiling that is made of wood is very warm and inviting and at the same time, it meets the Anderson 400 series tilt-in windows that offer expansive views and sunlight can enter and fill the hard wood floor space that is only in some areas. A stone-veneered fireplace or a wood stove can be there to give the room a sense of homeliness and coziness, thus making it the place to come together on cold winter nights with the comforting sound of logs burning in the background.

The open plan is working well with the kitchen which is along with the custom cabinetry will give you a chance to decide on the final product that will have deep oak to keep it traditional or sleek white for a modern twist. The next-door dining room is of sufficient size to have a long table that can be used for dinners or playing games by families and since the interior is not finished, the owners are free to do whatever they want with it, from painted drywall to wood-paneled partitions.
All three bedrooms have been ingeniously designed to give maximum comfort and to be easily convertible to other uses. The master bedroom situated on the ground floor is very quiet and peaceful and has a door leading to the full bathroom and at the same time, its raised panel solid pine door lends it a bit of simple but classy charm.

The bathroom prepared for custom fixtures, e.g., a deep soaking tub or walk-in shower, is also decorated with the harmonizing pine shades, which are the same as in the cabin’s interior, thereby creating a single unit and soothing mood. The additional two bedrooms sharing the second full bathroom are upstairs as well and consequently, the three rooms benefit from the loft’s 6-inch by 8-inch exposed joists and optional tongue-and-groove pine flooring, which furthermore, give the room a nice rough and warm texture.
Basically, the loft is a multi-functional diamond that can be used as a reading corner, home office, or extra bed for the visiting guests, and, more importantly, it is of an open plan that allows light from the great room downstairs and permits viewing of the landscape from the strategically placed windows.
Â
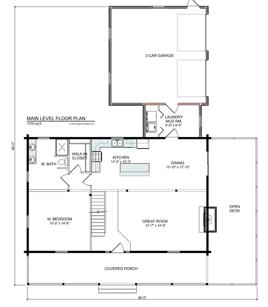
Below is the first floor plan:

Second floor plan:

Â
| Feature | Description |
|---|---|
| Square Footage | 1,800 sq ft |
| Bedrooms | 3 |
| Bathrooms | 2 |
| Materials | 6″ or 8″ pine/cedar logs, architectural shingles |
| Interior Features | Unfurnished, vaulted great room, stone fireplace, hardwood floors, custom stairway |
| Exterior Features | Large deck, covered porch, optional garage |
| Builder | Gingrich Log Homes |
Source: Gingrich Log Homes – White Oak
Â
Â