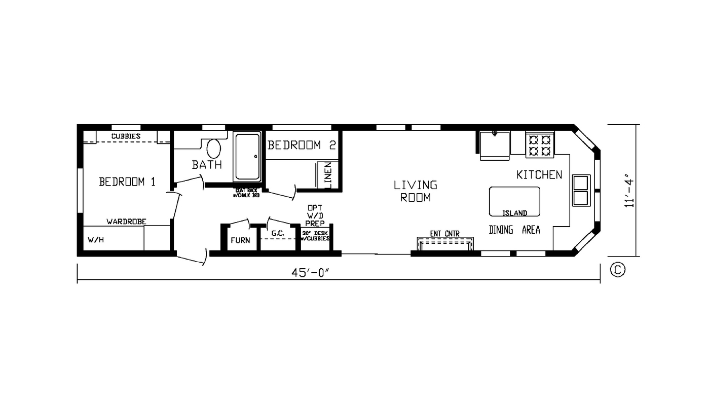
At just over 500 square feet, not many park model cabins can manage to feel genuinely spacious, light-filled, and luxurious, however, the Fairmont 148044 park model cabin is one of those that do exactly that. With a size of 45 feet long by 11 feet 4 inches wide, this two-bedroom, one-bathroom refuge is a total redefinition of compact living for the seasons or even the whole year. The first thing that comes to mind is how the amazing angled front wall of the cabin can create the panoramic lake or mountain views, but also how beautifully the interior of the cabin has been planned. Every inch of this park model cabin is a work of art that combines aesthetics, comfort, and everyday delight.

The moment you get close to the Fairmont 148044 park model cabin, you can tell its unique architecture from afar. The signature angled front wall—an element almost never found in park models—looks out far and wide through large front windows, thus massively extending the visual range. No matter if the cabin is facing the calm waters of a cove, a pine-covered ridge, or a sunset-lit prairie, it makes nature look like a living painting.
The outside of the park model cabin, with everything from neatly laid horizontal siding to residential-style shingles and well-matched trim, speaks of a custom cottage rather than a manufactured unit.

Once you are inside, the park model cabin reveals one of the most charming living areas of its kind, to you. The open-concept great room is like one big hall where the kitchen, dining, and lounge areas merge into one flowing space, while the lofty ceilings, and the abundant daylight that comes into the room, together give the airy feel that is quite at odds with the fact that the room occupies a small footprint. To the living area, a built-in entertainment center is the centerpiece, giving the perfect background for a flat-screen TV and an electric fireplace, and also allowing a roomy sectional sofa or two comfortable armchairs to be placed without any difficulty.

The kitchen is perfect in terms of style and efficiency. A large island with a four-seat arrangement is at once the work area and the place for a light meal, while the cooking of a family meal or a friendly feast is made really easy by the presence of full-sized appliances—such as a four-burner range, an apartment-size refrigerator, and a deep stainless sink. The cabinets of Shaker style go right up to the ceiling to offer the maximum storage, and the park model cabin’s view whatever it is, can be enjoyed through the window over the sink. The front wall which is angled allows the whole area to be filled with the gentle, ever-changing light from sunrise to sunset.

The layout of the park model cabin as you move from the front to the back is the one that changes most obviously, from public to private, areas. The full bathroom is the central feature of the house and it has a vanity of residential height, storage for bedding, and a luxury park model feature that is a full-size bathtub/shower combination. There are no small neo-angle showers here—what you get is a real bath tub that welcomes long, relaxing baths after a day of hiking, fishing, or just being in nature.

The two bedrooms that are on either side of the bathroom are also two good rooms. The primary bedroom located at the back of the house offers a tranquil escape with a wardrobe built-in, dedicated cubbies, and the corner placement of the water heater which helps in keeping the mechanical noise to a minimum.

The second bedroom which is just off the bath is equipped with a linen closet of its own and is easily accessible for guests or children. Both rooms can comfortably contain queen beds and this is something that is rarely the case in most park model cabins where space is a major constraint.

The area between the bathroom and the living room is home to one of the cleverest utility zones of any park model cabin. A closet for a furnace that is dedicated, a cabinet for general storage, a washer/dryer prep that is optional, and even a small built-in desk together make a command center that not only keeps things organized but also does not take away the living space. The thoughtful transitional area here is what makes the Fairmont 148044 not just functional but truly livable.
There is ample storage space throughout the park model cabin. The kitchen alone has access to a walk-in pantry type of storage through to the bedroom wardrobes and the multiple closets of the hallway, every item has its place. Owners are always saying that this 505 sq. ft. park model cabin is capable of holding more than their 800 sq. ft. cottages which they have previously owned.

The construction quality is up to the beautys level. The Fairmont 148044 is built according to CSA Z-240 standards for park models (the Canadian version of HUD) and it has 2×4 exterior walls with R-20 insulation, vinyl windows of residential type with Low-E glass, shingles of house-type asphalt, and interior finishing of top quality that can rival those of site-built homes. Particularly, the effort to reduce sounds from one room to another may be considered a highlight—the talking that goes on in the living room doesn’t get out of there, therefore real privacy is achieved even though the compact layout is used.
The Fairmont 148044 park model cabin is good at any of the following uses: a full-time minimalist residence, a luxurious vacation home, a high-end Airbnb rental, or a comfortable guest cottage. The very fact of the dramatic angled front wall being combined with the real two-bedroom functionality, full-size bathtub, and lots of natural light is what mainly contributes to the creation of a special atmosphere that is felt every day.
| Specification | Detail |
|---|---|
| Model | Fairmont 148044 park model cabin |
| Size | 505 sq ft (45′ × 11’4″) |
| Bedrooms | 2 (both queen-capable) |
| Bathrooms | 1 full with bathtub |
| Special Features | Angled panoramic front wall, kitchen island, entertainment center, exceptional storage |
| Construction | CSA Z-240 park model standard |
The Fairmont 148044 park model cabin ultimately succeeds because it never feels like a compromise. It is, quite simply, one of the most beautiful and livable compact homes available today—proof that thoughtful design can create magic in even the smallest spaces.
Source: Cavco Homes / Fairmont Park Models – Model 148044