Imagine stepping into a space that feels like the beginning of a new chapter, where every corner holds the promise of your dream escape. The 16×50 Gambrel Cabin Shell, priced at $47,333, is a breathtaking 800-square-foot foundation designed to turn your vision into reality. With its timeless design and thoughtful features, this cabin shell is the perfect starting point for a mountain hideaway, a coastal retreat, or a serene countryside sanctuary.
From the moment you see this cabin, its charm captivates. The gambrel roof, with its graceful double slopes, creates a silhouette that’s both striking and practical, offering generous interior space wrapped in rustic elegance. The exterior is adorned with warm Bronze SW7048 siding, vibrant Blue SW6517 trim, and a durable Charcoal Metal roof, blending sophistication with resilience. It’s a look that feels effortlessly at home, whether surrounded by towering pines or kissed by ocean breezes.

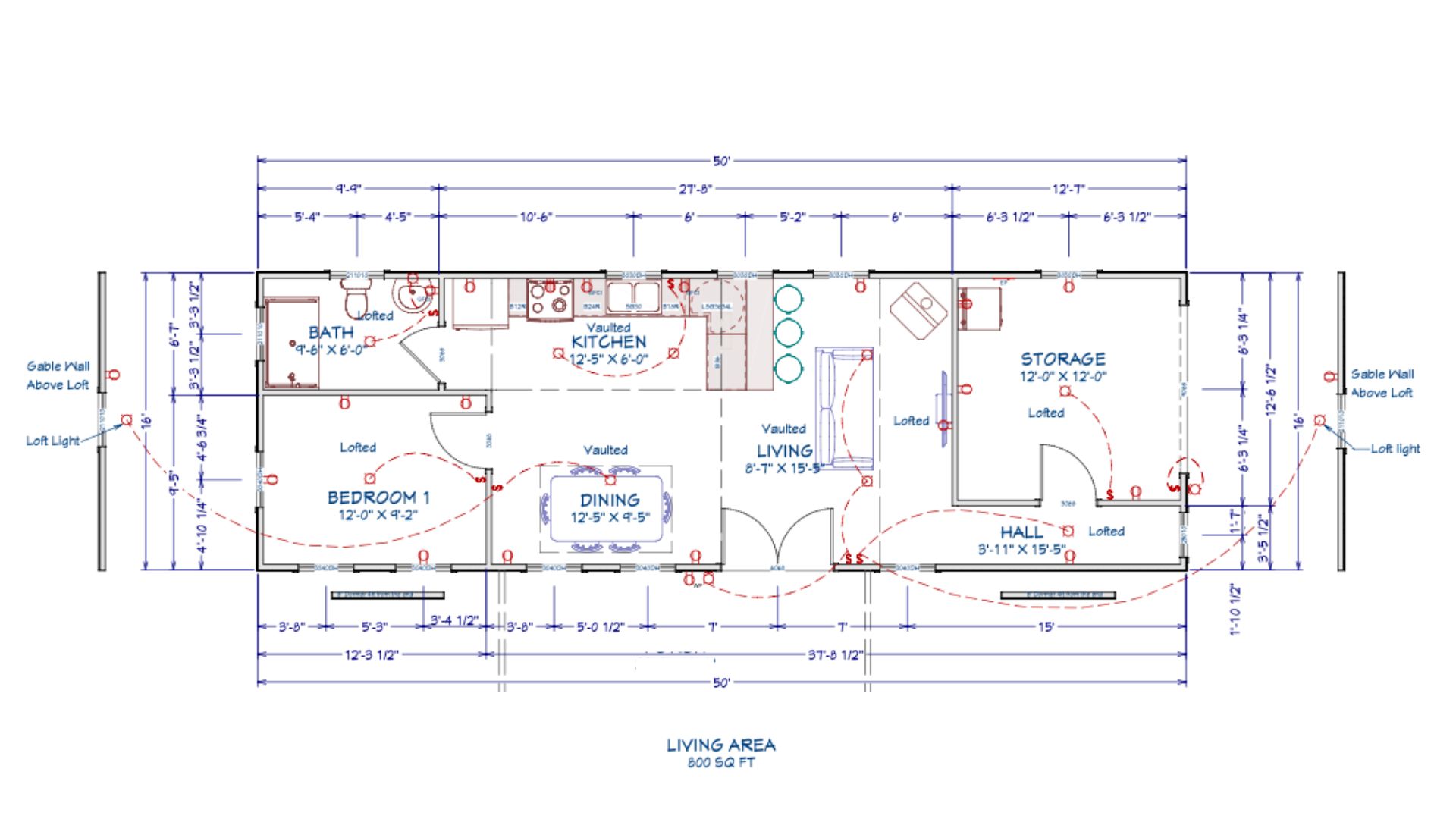
Inside, the unfinished interior is a blank canvas waiting for your personal touch. Spanning 800 square feet, the cabin features lofts at both ends, each with 6-foot dormers tucked under the top plate, providing ample room for cozy bedrooms, a quiet study, or clever storage solutions. The engineered tongue-and-groove flooring offers a solid foundation, while full spray foam insulation ensures comfort and energy efficiency year-round. A comprehensive electrical package is included, ready to support your modern needs, from sleek lighting to high-tech appliances.

The true magic of the 16×50 Gambrel Cabin Shell lies in its versatility. No matter where you dream of building, this cabin adapts to your vision. Picture it nestled in the mountains, where the lofts become cozy retreats for guests after a day of hiking or skiing, and the insulation keeps the chill at bay. Or envision it by the sea, where the Bronze siding withstands salty air, and the Blue trim mirrors the waves. The open interior could transform into a light-filled haven with wide windows capturing every sunset.
In a quiet rural setting, this cabin becomes a sanctuary from the demands of everyday life. You might craft a farmhouse-inspired interior, complete with a sprawling porch for evening stargazing. For those drawn to sustainable living, the cabin’s electrical package pairs seamlessly with solar panels, creating an off-grid oasis in a remote desert or forested valley. Wherever you choose to build, this cabin offers the flexibility to create a space that’s uniquely yours.

At $47,333, the 16×50 Gambrel Cabin Shell is a remarkable value, blending high-end craftsmanship with affordability. The rent-to-own option, starting at $1,875 per month with no credit check, makes ownership accessible to everyone, whether you’re a first-time buyer or a seasoned homeowner. The process is simple and exciting: explore the design in 3D online, tweak it to match your vision, and place your order. Within 2-6 weeks, your cabin will be delivered free within 100 miles of Itasca, TX. If space is limited, it can be built onsite, ensuring a perfect fit for your property.
This cabin is more than a structure—it’s a gateway to the lifestyle you’ve always imagined. Whether you’re seeking a peaceful retreat, a family gathering spot, or a sustainable haven, the 16×50 Gambrel Cabin Shell provides the foundation to make it happen. Its stunning design, durable construction, and endless customization options make it an investment in your present and future.

Ready to start your journey? Contact Eagle Ridge Barn Builders to discuss customizations, request a quote, or explore the rent-to-own program. With a lifetime warranty against leaks and decay and exceptional customer support, they’ll ensure your dream retreat becomes a reality.

| Feature | Description |
|---|---|
| Price | $47,333 |
| Square Footage | 800 sq ft |
| Siding Color | Bronze SW7048 |
| Trim Color | Blue SW6517 |
| Roof Color | Charcoal Metal |
| Insulation | Full spray foam insulation for energy efficiency |
| Flooring | Engineered tongue-and-groove flooring for durability |
| Lofts | Two lofts with 6-foot dormers for added space and storage |
| Electrical Package | Complex electrical package for modern power needs |
| Delivery | Free within 100 miles of Itasca, TX; 2-6 weeks after ordering |
| Rent-to-Own Option | $1,875/month with no credit needed |
| Builder | Eagle Ridge Barn Builders, offering lifetime warranty against leaks and decay |
Source: Eagle Ridge Barn Builders – 16×50 Gambrel Cabin Shell